Modular Changing Places Installed In Carpark of RHS Harlow Carr

RHS Harlow Carr, based in Harrogate, North Yorkshire, provides specially designed gardens reflecting the Yorkshire landscape with trails, a log maze and tea rooms.
Client:

RHS Harlow Carr

Location:

North Yorkshire

Contractor:

Innova Care Concepts

Sector:
Public Spaces
Harlow Carr Before Changing Places

The Challenge

Following calls from visitors, RHS Harlow Carr amongst other RHS locations needed a Changing Places toilet installing on site. With limited internal space to house a compliant Changing Places, the gardens needed an external solution.

Not only did they need an accessible toilet that was easy to find and access, it also needed to be in keeping with the style of the existing buildings.

Another important consideration was reducing disruption. As the gardens are open all year round, RHS Harlow Carr needed building work to be carried out quickly and with minimal disturbance, ensuring their visitors experience wasn’t impacted by noise or dust.

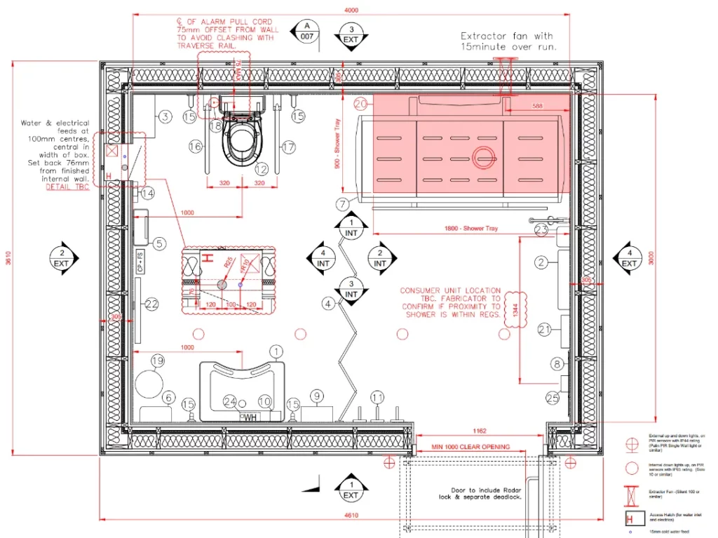
Modular Changing Places Drawing

Approach

Using their experience and expertise, Innova were able to support RHS Harlow Carr with the design, installation and sign off of their Changing Places toilet.

To help overcome the issues of a lack of internal space and requiring a facility that was easy to locate, Innova were able to put forward a modular solution.

Modular Changing Places Toilet Being Craned In

Implementation

During the design stages, Innova were able to recommend placing a modular Changing Places in the main car park, ensuring maximum ease for visitors to find and use the facility. In order for the facility to blend in with the existing surroundings, Innova were able to provide different cladding finishes and colours, helping the modular pod to match the aesthetics of the other buildings on site.

Having a modular Changing Places option also ensured minimal disruption on site, as the majority of the building works are carried out offsite.

Once the ground works were laid and the main services hooked up, Innova were able to crane the modular Changing Places into place and install the specialist equipment.

Modular Changing Places at RHS Harlow Carr.

Results

Featuring all the equipment expected of a Changing Places, including an overhead hoist system, the facility also included bespoke wall graphics, with imagery of the gardens to help make the Changing Places less clinical for users.

Client Quote(s)

“Sharing our passion for gardening is a key charitable aim and we want to give as many people as possible the opportunity to enjoy our beautiful Gardens. The inclusion of the brand new Changing Places unit will, we hope ensure members of the local community and all our visitors can explore RHS Harlow Carr without worry.”

Liz Thwaite, Head of Site at RHS Garden Harlow Carr

 

“It has been a privilege to help RHS Harlow Carr become more accessible by installing a modular Changing Places toilet. Outdoor venues are the number one area where those with complex care needs and their families want to see more Changing Places, so it is fantastic to see RHS Harlow Carr acknowledge those needs.

“Their new Changing Place will allow more families to enjoy the beautiful gardens without having to worry about where to find appropriate toileting facilities. We hope that many other local organisations will follow in their footsteps and take action to become more inclusive.”

Derek Oliver, Changing Places Manager at Innova Care Concepts

Related Products

Speak to The Experts

Need assistance with product enquiries, general inquiries, or product support? Our Phonelines are open 9am - 5pm Monday to Friday

0113 519 0319

Or, fill out the form for a call back.

...